
Αλέξανδρος Τομπάζης
(1939-2024)
Οι περισσότεροι θα τον θυμούνται για το αινιγματικό κτήριο Δίφρος στο Χαλάνδρι ή για τις κομψές Δρυάδες του στην Κηφισιά. Άλλοι ίσως θα προτιμούν να μνημονεύουν το μεγαλόπνοο Ηλιακό Χωριό του στην Πεύκη, την εμβληματική επέκταση του Μουσείου των Δελφών, την κατοικία Ήλιος στην Τράπεζα Αιγιαλείας, το κτήριο της Φαρμακευτικής Σχολής του Πανεπιστημίου Πατρών, την Ευαγγελική Σχολή Νέας Σμύρνης ή το διάσημο ξενοδοχειακό συγκρότημα Costa Navarino. Είναι πράγματι πολλά και σημαντικά τα κτήρια και οι κατασκευές με τα οποία κόσμησε το Αττικό λεκανοπέδιο και την ελληνική ύπαιθρο ο καταξιωμένος αρχιτέκτονας Αλέξανδρος Τομπάζης, που έφυγε από τη ζωή σε ηλικία 85 ετών.

Δίφρος, Χαλάνδρι
Δρυάδες, Κηφισιά
Αφήνει πίσω του μια σειρά μνημειακών έργων, τόσο στο εξωτερικό όσο και στην Ελλάδα, μεταξύ των οποίων μια μεγάλη εκκλησία 9.000 καθημένων στην Πορτογαλία, τζαμί στο Ντουμπάι, πανεπιστήμιο στην Κύπρο, ιδιωτικές κατοικίες στο Άμστερνταμ, συγκρότημα γραφείων στη Ρουμανία, το αρχαιολογικό μουσείο στους Δελφούς, ενώ ένα από τα τελευταία έργα, που είχε αναλάβει, ήταν και το Νέο Αρχαιολογικό Μουσείο της Αθήνας, στο πλαίσιο της ευρύτερης ανάπλασης της περιοχής, αφήνοντας έτσι την υπογραφή του και στην αρχιτεκτονική του 21ου αιώνα.

Ηλιακό Χωριό, Πεύκη


Κατοικία «Ήλιος», Τράπεζα Αιγιαλείας
Ο Αλέξανδρος Τομπάζης γεννήθηκε στις Ινδίες το 1939. Αποφοίτησε από την Ανωτάτη Σχολή Αρχιτεκτόνων ΕΜΠ το 1962. Το 1991 εξελέγη επίτιμο μέλος του Αμερικανικού Συλλόγου Αρχιτεκτόνων (ΑΙΑ), ενώ το 2006 αναγορεύθηκε Επίτιμος Διδάκτωρ του Αριστοτελείου Πανεπιστημίου Θεσσαλονίκης. Το γραφείο μελετών Αλέξανδρου Ν. Τομπάζη ιδρύθηκε το 1963 και έκτοτε παρέχει υπηρεσίες μελέτης και επίβλεψης σε πολλούς τομείς και κλίμακες αρχιτεκτονικών έργων, με έμφαση στον βιοκλιματικό και ενεργειακά αποδοτικό σχεδιασμό.

Μουσείο Δελφών

Τμήμα Φαρμακευτικής Πανεπιστημίου Πατρών
Στον μισό και πλέον αιώνα της δημιουργικής διαδρομής του ο Αλέξανδρος Τομπάζης βραβεύτηκε ως αρχιτέκτονας σε περισσότερους από 110 διαγωνισμούς. Εκεί αποκαλύπτεται η ιδέα του «less is beautiful» παραλλάσσοντας ή επεκτείνοντας το απόφθεγμα του πρωτοπόρου Γερμανού αρχιτέκτονα Mies van der Rohe (1886-1969) «less is more». Εκτός από την αρχιτεκτονική, αφιέρωνε χρόνο στη ζωγραφική και στη φωτογραφία και παράλληλα ταξίδευε συχνά και έδινε διαλέξεις σε διεθνή συνέδρια, πανεπιστημιακές σχολές κ.ά.



Ακουαρέλες του Αλεξ. Τομπάζη
Πράγματι είναι γνωστή η αγάπη του Τομπάζη για τη ζωγραφική την οποία ξεχώριζε ως αυτόνομη δημιουργική πράξη, μια ψυχική τάση ανεξάρτητη και ελεύθερη που υπακούει μόνο σε ατομικές και εσωτερικές βουλήσεις, διακριτή τελείως από την άλλη του δραστηριότητα, αυτή του αρχιτεκτονικού σχεδιασμού με τις ποικίλες δεσμεύσεις, τους αυστηρούς όρους και τη συλλογική και σύνθετη διαδικασία. Κυρίως αφιερώθηκε στην τέχνη της ακουαρέλας με γραμμική σχεδίαση χρηστικών αντικειμένων της καθημερινότητάς μας: μπουκάλια, τσαγερά, βάζα, σκεύη κουζίνας, ανθοδοχεία και παράλληλα φρούτα και λουλούδια, όλα σε μια αρμονική διάταξη, όπου αναδεικνύεται η μορφή τους, η ακρίβεια του όγκου τους, η γεωμετρική σχέση τους, η οπτική τους διάσταση. Σε μιαν άλλη σειρά, θέμα είναι ο εσωτερικός, ατομικός χώρος: ένα αστικό δωμάτιο με παράθυρο, μια κουζίνα με τα ποικίλα σκεύη της και στους αντίποδες εξωτερικά τοπία: αγροί με κυπαρίσσια, πλαγιές με μικρούς οικισμούς, θάμνοι με δέντρα, νησιώτικα λιμάνια με βάρκες και καΐκια.

Ανάμεσα στα πολλά έργα του Αλέξανδρου Τομπάζη ξεχωρίζουμε το κτήριο της ΑΓΕΤ Ηρακλής στη Λυκόβρυση Αττικής και μια ιδιωτική κατοικία με αυλή στην Αθήνα:
Κτήριο γραφείων ΑΓΕΤ Ηρακλής
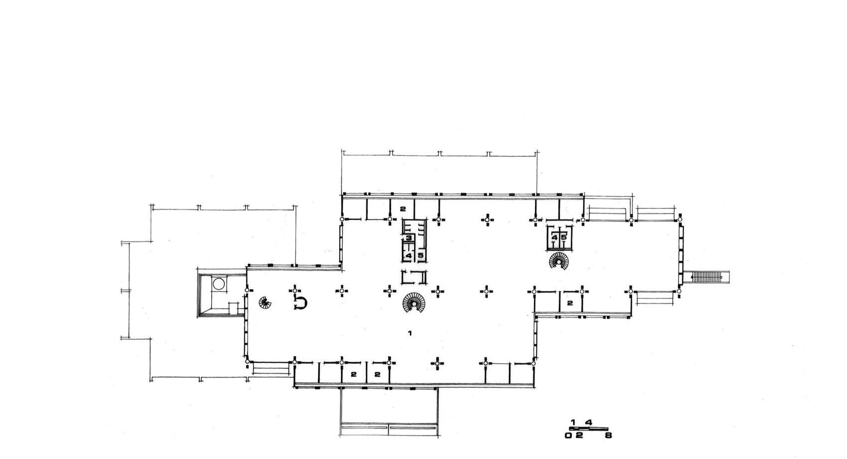
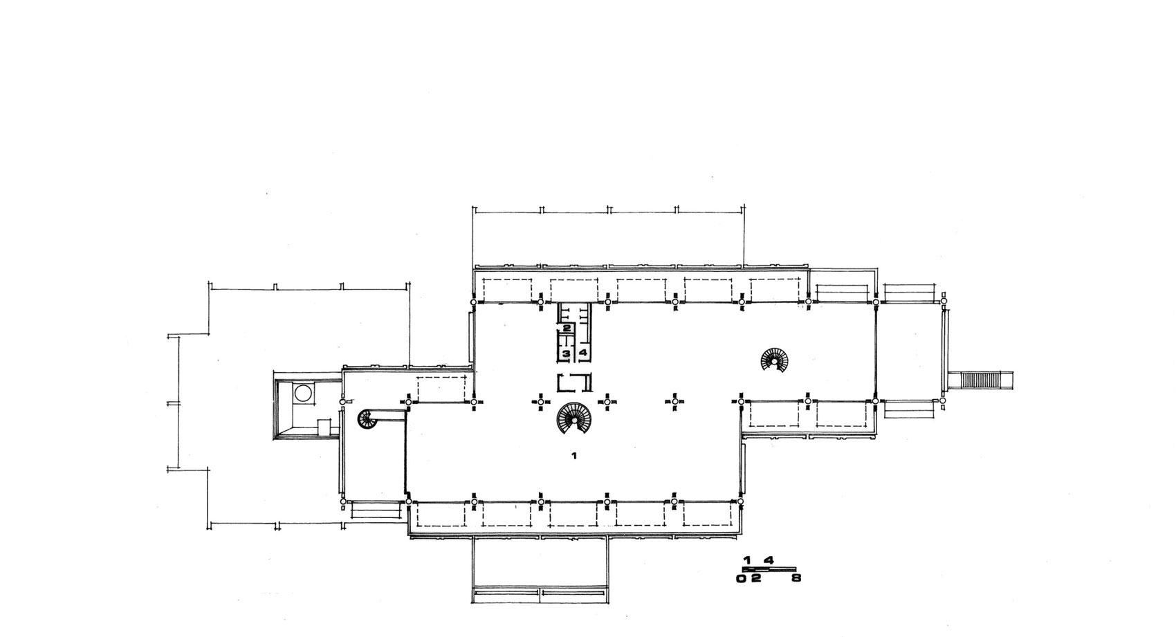
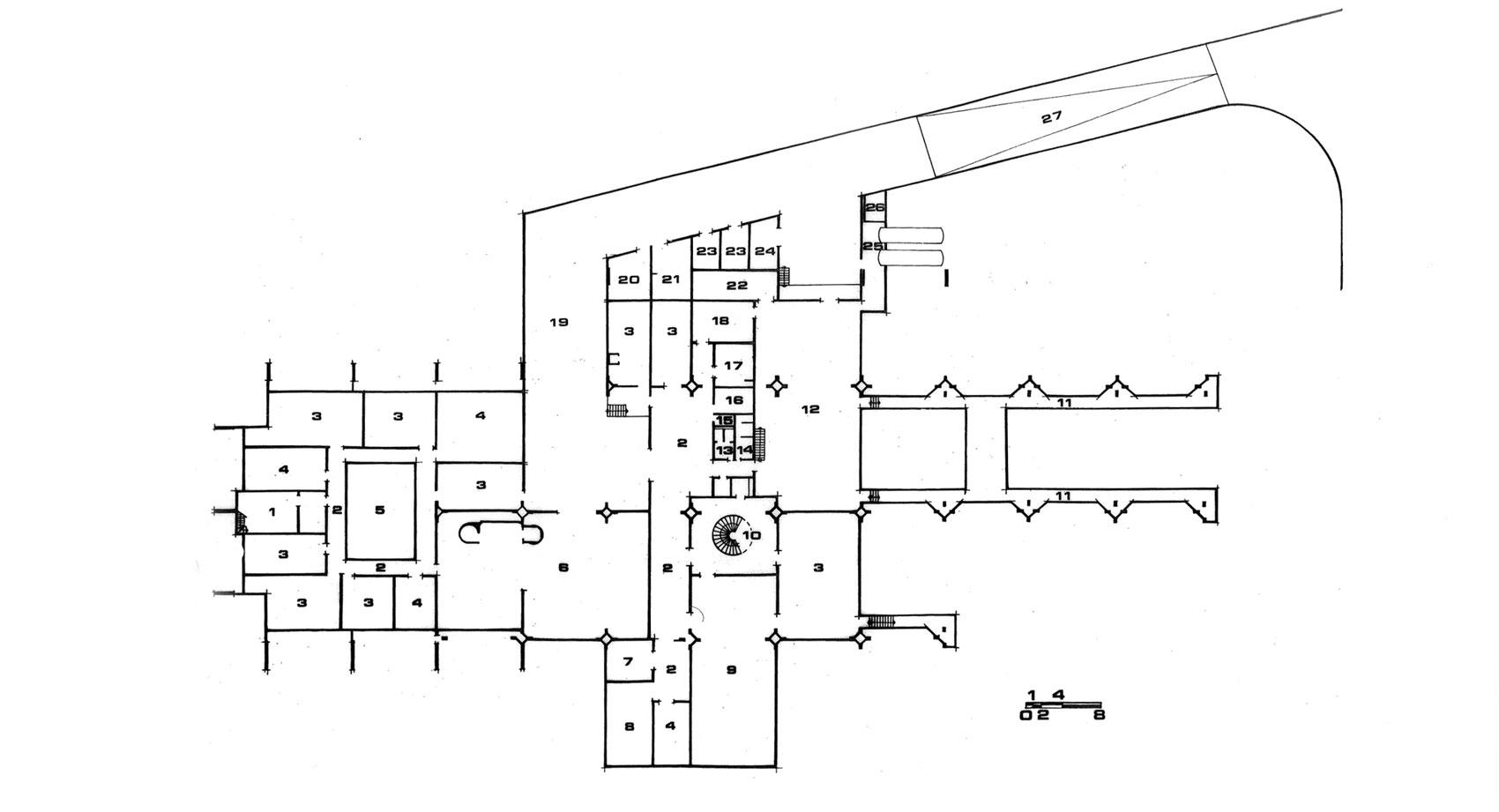
Στο εμβληματικό κτήριο της ΑΓΕΤ Ηρακλής, στη Λυκόβρυση, συναντώνται αρμονικά και ισορροπούν απόλυτα δεμένα μεταξύ τους όλα τα φυσικά στοιχεία: φως, νερό, αέρας, τοπίο, ξύλο, βλάστηση, υπηρετώντας από κοινού τον βασικό σκοπό του σχεδιαστή του για τη δημιουργία και ανάδειξη βιώσιμων χώρων γραφείων που αποπνέουν φυσικότητα, ηρεμία, άνεση, απλότητα και ζεστασιά σε όποιον κινείται και εργάζεται μέσα τους. Το κτήριο κατασκευάστηκε το 1975 και αποτελείται από υπόγειο, ισόγειο, μεσώροφο και δύο ορόφους.
Στο υπόγειο προβλέπονται βοηθητικοί χώροι, αποθήκες, μηχανοστάσιο, μικρός χώρος στάθμευσης δέκα αυτοκινήτων για τη διοίκηση και υπηρεσιακή αυλή φόρτωσης και εκφόρτωσης, με προσπέλαση για φορτηγά και αυτοκίνητα μέσω ράμπας που βρίσκεται στο πίσω μέρος του κτηρίου. Το ισόγειο αποτελείται από δύο τμήματα. Το βασικό τμήμα όπου υπάρχει η κυρία είσοδος του κτηρίου προς το κεντρικό χώλ και η αίθουσα πολλαπλών χρήσεων για διαλέξεις, εκθέσεις κ.λπ. Στο ισόγειο βρίσκονται γραφειακοί χώροι θυγατρικών εταιρειών και υπηρεσιών της εταιρείας που έχουν μεγαλύτερη επαφή με το κοινό. Επίσης στο ισόγειο υπάρχει καφετέρια του προσωπικού και ο χώρος του ηλεκτρονικού υπολογιστή.
Στο δεύτερο και χωριστό τμήμα του ισογείου βρίσκονται τα γραφεία της διοίκησης. Ιδιωτικά γραφεία και άλλοι χώροι συνεδριάσεων αναπτύσσονται γύρω από ένα κεντρικό αίθριο με λίμνη. Το τμήμα διοίκησης ενώνεται με το υπόλοιπο κτήριο μέσω κλειστής πεζογέφυρας. Στον μεσώροφο του κτηρίου βρίσκονται γραφειακοί χώροι και χώροι γενικής εξυπηρέτησης (πρωτόκολλο, φωτοτυπείο κ.λπ.). Το προσωπικό εισέρχεται στο κτήριο μέσω πεζογέφυρας που οδηγεί από τον εξωτερικό χώρο στάθμευσης αυτοκινήτων κατ’ ευθείαν στον μεσώροφο. Με αυτό τον τρόπο η είσοδος στο κτήριο πραγματοποιείται στην υπερυψωμένη στάθμη του μεσωρόφου.
Ο όροφος αποτελείται μόνον από γραφειακούς χώρους. Κλειστά γραφεία υπάρχουν μόνο λίγα, στην περίμετρο της κάτοψης, και μόνον όπου ο όροφος βρίσκεται σε πρόβολο από τον κατακόρυφο φέροντα οργανισμό. Η βασική οργάνωση του ορόφου είναι ανοικτή, βασισμένη στο σύστημα του landscape planning. Ο τελευταίος όροφος είναι ανάλογος, αλλά μικρότερος από τον πρώτο. Κατακόρυφη επικοινωνία υπάρχει σε τρία σημεία του κτηρίου. Ο κεντρικός κόμβος αποτελείται από σκάλα και δύο ανελκυστήρες (κύριο και βοηθητικό) και ενώνει όλα τα επίπεδα μεταξύ τους. Εκεί βρίσκονται και οι κεντρικοί υδραυλικοί χώροι όλων των ορόφων. Υπάρχει ένας αντίστοιχος κόμβος για τους γραφειακούς χώρους και ένας που ενώνει τη διοίκηση με το υπόλοιπο κτήριο.
Το κτήριο υπέστη ζημιές από τον μεγάλο σεισμό της Αθήνας, τον Σεπτέμβρη του 1999, καθώς είναι χτισμένο πολύ κοντά στο επίκεντρό του και είχε ανεγερθεί πριν τεθεί σε ισχύ η σύγχρονη αντισεισμική νομοθεσία. Τότε έγιναν εκτεταμένες εργασίες αποκατάστασης και ενίσχυσής του με τη δέουσα επιμέλεια, ώστε οι επεμβάσεις να μην αλλοιώσουν τον αρχιτεκτονικό χαρακτήρα του κτηρίου, τις όψεις του και τα μεγάλα ανοίγματα στο εσωτερικό του. Στα νεώτερα χρόνια, η γενική ανακαίνιση του κτηρίου το 2021 ανέδειξε τη μοναδική αρχιτεκτονική του που, στο μεταξύ, είχε υποστεί αλλοιώσεις και παρεμβάσεις στον αρχικό σχεδιασμό του από τους εκάστοτε ιδιοκτήτες – χρήστες του.
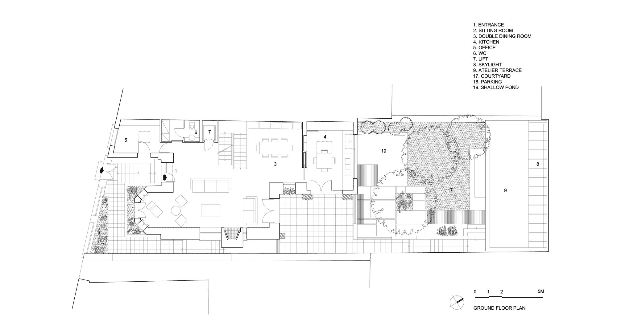
Κατοικία με αυλή στην Αθήνα
Μπορεί να είναι από τις λιγότερο προβεβλημένες δημιουργίες του Αλεξ. Τομπάζη, όμως δεν παύει ν’ αποτελεί ένα σημείο αναφοράς για την ομορφιά, την κομψότητα και την πνευματικότητα που μπορεί να αποπνέει μία δομική κατασκευή, ακόμα και μέσα στο τόσο επιβαρυμένο περιβάλλον μιας γειτονιάς κοντά στο κέντρο της Αθήνας. Το έργο αποτελεί το αποτέλεσμα της αποκατάστασης παλαιάς διατηρητέας προπολεμικής μονοκατοικίας, σε μια περιοχή (Κεραμεικός) που, παρά το κτίσιμο πολλών πλέον πολυκατοικιών και τη διείσδυση υπερτοπικών κινήσεων και χρήσεων, διατηρεί ακόμη σε μεγάλο βαθμό τον χαρακτήρα της. Σε αυτό το πνεύμα κινήθηκε η μελέτη επικεντρώνοντας τη σύνθεση γύρω από μία μικρή αλλ’ εξαιρετικά επιμελημένη αυλή με πλακόστρωτο, φύτευση και νερό, μια πραγματική όαση που πλαισιώνεται από μια διώροφη προσθήκη, στο βάθος του οικοπέδου που αναπτύσσεται -και αυτή- πάνω στα ίχνη παλαιότερης κατασκευής, και τις όμορες υψηλότερες οικοδομές.


Ιδιαίτερη σημασία δόθηκε εδώ στη διαφάνεια των χώρων και στην εισαγωγή φυσικού φωτισμού. Ο ίδιος ο εσωτερικός χώρος του κυρίου κτίσματος αναπτύσσεται ενιαία τριώροφος. Μια μεταλλική σκάλα και ένας εξώστης, των οποίων τα πατήματα και το δάπεδο αποτελούνται από μεταλλικό πλέγμα, διαπερνούν τον χώρο που δέχεται άπλετο φυσικό φως από τον φεγγίτη του δώματος. Παρόμοιο άνοιγμα οροφής και υαλόφρακτο πάτωμα υπάρχει και στην προσθήκη του atelier, στο πίσω μέρος της αυλής. Γενικά η εισαγωγή του φυσικού φωτός και το παιχνίδισμα των σκιών, που δημιουργούνται από τις διάτρητες μεταλλικές κατασκευές, αποτελούν σημαντικά στοιχεία αυτής της αρχιτεκτονικής σύνθεσης, δείχνοντας τον δρόμο για έναν άνετο και ανθρώπινο τρόπο ζωής στην καρδιά ενός τόσο στενού και ασφυκτικού πολεοδομικού ιστού.

Μεγάλες στιγμές ενός μεγάλου έργου, στον δημόσιο αλλά και στον ιδιωτικό χώρο, που ξεχωρίσαμε ανάμεσα στη μεγάλη αρχιτεκτονική παρακαταθήκη που μας άφησε ο κορυφαίος δημιουργός. Με τη φύση πάντα παρούσα με όλα τα στοιχεία της στις συνθέσεις και στις κατασκευές του. Ο Αλέξανδρος Τομπάζης δε μένει πια εδώ. Όμως το έργο του, με τη βιοκλιματική προσέγγιση της δόμησης και τον σεβασμό στο περιβάλλον που γεννά τη δημιουργία, θα παραμένει ένα παντοτινό σημείο αναφοράς για γενιές και γενιές νέων ανθρώπων και αρχιτεκτόνων.
Πηγές: doma.archi, hartismag.gr, ktirio.gr









































